HOME  |  SITE MAP  |  INGUIRY  |  KOREAN  
 
HOME > PRODUCT DETAILS > THERMO-HYGROSTAT SYSTEM > SYSTEM CONCEPT DIAGRAM  
+ Energy Saving HVAC System
  - HVAC System Summary
  - HVAC System Selection
  - Standard Specs
+ Clean-Room System
  - Clean-Room System Summary
  - Clean-Room Design Checkpoints
  - Particles and Class
  - Air Handling Unit
  - Condensing Unit
  - Air Control Unit
  - Air Shower
  - Pass Box
  - Clean Booth
  - Clean Bench
  - Clean Locker
  - Fan Filter Unit
  - Blower Filter Unit
  - Hepa Filter Box
  - Relief Damper
+  Contant Temperature and Humidity
    Chamber
  - T/H Room Design Checkpoints
  - Standard Specs
  - System Concept Diagram
+ Cooling Dehumidifier Unit
  - Standard Specs
+ Adsorbent Dehumidifier Unit
  - Summery
  - Standard Specs
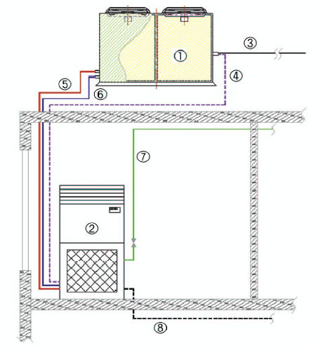
System Concept Diagram

Thermo-hygrostat System Concept Diagram
System Concept Diagram
¨ç Outdoor unit
¨è Constant temperature &
     humidity air-conditioner
¨é 3¨ª 220V/380V Power-supply
¨ê Control line
¨ë Refrigerant gas pipe
¨ì Refrigerant liquid pipe
¨í ¨ª15 Water-supply
¨î ¨ª25 Drain

Remote Monitoring System Concept Diagram

COMPANY  |  PRODUCTS  |  EXAMPLES  |  INFOMATION  |  SUPPORT
Business Incubator Center, Korea Polytechnic University, 2121 Jeongwang-dong, Siheung-si, Gyeonggi-do
TEL +82-31-497-3725 FAX +82-31-497-3721
Copyright by T1 ENGINEERING CO., LTD. All rights reserved.